apartment Laguna Beach 26 in Torrox-Costa
>>> If you do not see any navigation (houses 1, apartments 1, etc.) on the left side, please click on the small symbol with three stripes in the upper left corner.
| description: | The apartment is located in the ground floor of a two-storey building in Southern position, which is very close to the sandy beach. From the terrace there are less than 10 m to the nice promenade and the wide sandy beach. The panoramic view from the living-room and the terrace on the sea and the beach is simply perfect. Being located in the ground floor and having no cumbersome steps the apartment is also suitable for physically handicapped persons. - The very large, well-tended and marvellous arranged urbanisation looks like a hotel area with various parks, several swimming-pools, an indoor pool for the wintertime, 4 tennis courts as well as countless restaurants, bars and shops. There is also a sufficient car park. The 4 km long and very nice promenade as well as the lovely village itself invite to go for a walk. The comfortable equipment of the apartment and the exclusive location really don’t leave anything to be desired and promise complete relaxation and recovery. |
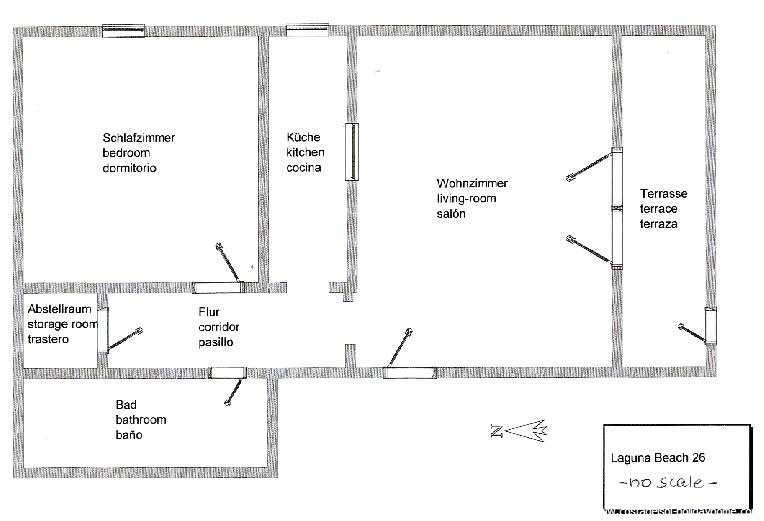
| rooms: | 1 bedroom with double bed and fitted wardrobe, living-dining room with double bed-couch for 3rd and 4th person, separate kitchen with big hatch, complete bathroom, storage room, livingspace of approx. 55 sqm, roofed terrace of approx. 12 sqm |
| journey there: | airport Malaga, from there approx. 50 minutes by hire car |
| max. number of persons: | 4 persons |
-
equipment
air conditioning (cold + warm)
beach chairs
bidet
carpet
coffee maker, electric
cooker: electric ceramic hob (4 pl.)
crockery
fans (ceilings + mobile)
fridge-freezer
garden furniture
heating: mobile electric heaters
internet: free access
iron
microwave oven
oven
roller blinds
sunshade
smart-TV (TV by internet)
toaster
towels and bed linen
washing machine -
special features
panoramic views on beach and sea
distance to the beach less than 10 m
enormous, well-kept park area
various pools, indoor pool, tennis courts, internet café, restaurants and shops in the housing area as well as in the village -
sport / activities
all kinds of water sport
aquatic park (Vélez-Málaga)
bicycle rental shop (Caleta)
fitness centre (for a fee)
golf (Baviera Golf)
hiking (in the hills or on the 50 km long beach)
horse riding (Almayate)
motor-kart-circuit (Almayate)
paddle
playground
skiing (Sierra Nevada)
tennis
yacht charter (Caleta)
Torrox-Costa is a village on the beachside in the region of Malaga. It is approx. 45 km far from Malaga resp. 58 km from Malaga airport. Using the motorway you need approx. 50 minutes. The most important villages in the vicinity are Torrox (3 km), Nerja (9 km), Torre del Mar (12 km), Vélez-Málaga (15 km) and Almuñecar (45 km), which are all interesting for tourists.
Torrox-Costa is a village, which disposes of all kinds of supply: schools, large supermarkets, all kinds of shops, banks, pharmacies, medical services, veterinary surgeons, petrol stations etc. In Vélez-Málaga there is a large shopping-center (El Ingenio - with cinemas, shops of international propietary articles and a huge supermarket), in Caleta (9 km) is a golf course with 18 holes.
The housing area of Laguna Beach is located in very first line to the beach with direct access to the wide sandy beaches Playa Ferrara and Playa Cenicero. It disposes of extensive park areas with ponds, palms and flowers, an olympic swimming-pool (50 x 25 m) and a pool for children (15 x 15 m) with a large lawn, various smaller pools, an indoor pool for the wintertime and 4 tennis courts.
Inside of the urbanisation there are several restaurants and bars, a supermarket, baker’s shop, souvenir shops, newsstands, health club, hairdresser, veterinary surgeons, a playground, cybercafe and others.
The apartment area is distinctly shared in two different zones: near by the street there are the buildings with 6 or 7 floors, close to the beach are located the houses with only 3 floors (ground floor, first and second floor).
Because the complete housing area is traffic-free, here you live restfully and ideal to relax. There is a 24-hours-security service. A large, free car park is also at your’s disposal. Along and at the side of the housing area is the 4 km long and very nice promenade, which invites to go for a walk.
In short words: in this splendid urbanisation, which isn’t located in any desert region, but within the village of Torrox-Costa, here you find all, what makes holidays or a long-term stay perfect.
The best climate of Europe
Torrox-Pueblo enjoys the charm and beauty of the Andalusian white towns, and the ideal conditions to enjoy the sea and sunshine on its Mediterranean coast. A bright typical town, beaches of crystal clear waters, a natural surrounding that holds most of its virginity and an ideal infrastructure make Torrox a place with all the comforts but lacking the exhausting massiveness of other touristic destinations.
Sun and beach all year long
At only 45 kms away from Malaga International Airport and 10 kms from the famous Nerja Caves, Torrox offers 9 kms of wide sandy beaches, where the visitor finds the most complete services and facilities for his comfort and security.
Restaurants, beach bars, souvenirs kiosks and recreation and sport centres, that make Torrox the ideal destination to enjoy the sunshine during all four seasons of the year.
Two thousand years of history
The Romans were the first ones to leave their mark on the Torrox coast, where still remain ruins of a village, baths, necropolis and a ceramic factory. Referred to with its actual name in the Arab books of the XIth century, the Moorish occupation left its trademark in the town’s layout, its narrow inclined streets, it whitewashed walls and a symphony of flowers and pots.
You can still admire parts of the old walls and towers of the castle where Almanzor was born and the coastal watch towers of “El Morche” and “Caleceite”. From the Christian times are the Our Lady of the Snow and Saint Roque hermitages and the impressive Our Lady of the Incarnation church, built on top of the old mosque and rebuilt in the XIXth century. Remains of the Saint Joseph’s hospital (XVIIIth century); as well as the “Perez” mill and the “Santa Rosa” sugar mill; and the majestic mansions of “La Moneda” (XVIIIth century) and of “La Hoya” (XIXth century), where King Alphonse the XIIth, used to stay, are whitnesses of an active and eloquent past.
A tradition always present
Torrox is a town of deep traditions and multiple festivities. The austere but emotive Holy Week and Corpus; The Crosses of May; the patron’s festivities of Our Lady of Snow ans Saint Roque (August 5th), Güi’s Fandangos; “La Candelaria” with its traditional pyres in the mountain farmhouses (7th and 8th of September); the local fairs of Torrox (October 5th) and El Morche (August 15th); the Saint John’s Night (June 24th) and the world known festival of the “Migas” (last Sunday before Christmas), are moments of gathering where you dance and sing, try their traditional dishes and taste their local sweet wine, still made the old artisan way.
Torrox-Costa lies in contrast to Torrox-Pueblo direct on the 9 km long sandy beach. It is a popular holiday resort for English, Spanish and German tourists where are a lot of international institutions (restaurants, shops, medical center). The beach and the water are so clean that the European Union has award Torrox-Costa repeatedly the Blue Flag. The very long promenade with its countless bars invites to go for a stroll in the evenings. But also on both sides of the main street, which leads through the long village, several shops, supermarkets and restaurants take care of comfortable shopping and diversion.
instructions for the calculation
The prices are always effective per day and lodging (NEVER per person, NEVER per night).
Every day counts like a complete day, also the day of arrival as well as the day of departure, because the lodging will be only at yours disposal during these days. So there are no fixed hours for entering and leaving the lodging, will say our guests can move in also in the mornings and depart in the evenings to enjoy their holidays from the first until the last minute.
Price per day and lodging (NOT per person, NOT per night):
| Laguna Beach 26 | PRICES |
|---|---|
| October until May: |
from a 7-days-stay up: 44 Euro from a 15-days-stay up: 39 Euro from a 30-days-stay up: 34 Euro |
| June and September: |
from a 7-days-stay up: 71 Euro from a 15-days-stay up: 61 Euro from a 30-days-stay up: 51 Euro |
| July and August: |
from a 7-days-stay up: 106 Euro from a 15-days-stay up: 86 Euro from a 30-days-stay up: 81 Euro |
| minimum rent: | 7 days, beyond it any number of days is possible |
| short-term or long-term stays: | offer on request (inform please of the name of the lodging) |
| additional costs for water and electricity: |
from October until May plus global price of 2 Euro per day from June until September including these costs from a 30-days-stay on electricity depending on consumption |
| final cleaning (once per stay): | 90 Euro |
| arrival and departure: | don’t depend on a certain day |
I always try to update the availability calendar as quick as possible. But it is not guaranteed that exactly in this moment it shows the current availability.
Please call me or send me an email and I will answer within short time.
GREEN = available
BLUE / BLUE-GREEN / BLUE-RED = unavailable days
RED = booked (also the days in two colours)































